Adviesprijs €675,00 Jouw voordeel €108,00 (-16%)
€567,00 excl. BTWIncl. BTW: €686,07
Merk: Diamond
Artikelnummer: GS44
Garantie: 1 jaar
Beschikbaarheid: Op voorraad

Gratis verzending vanaf 500,00 - anders 9,99
Laagste prijsgarantie
Achteraf betalen via Klarna
Voor bedrijven en consumenten
Snelle levering
Ruim 25 jaar ervaring
Klantbeoordeling HOCO 8.5/10
PRODUCTGEGEVENS
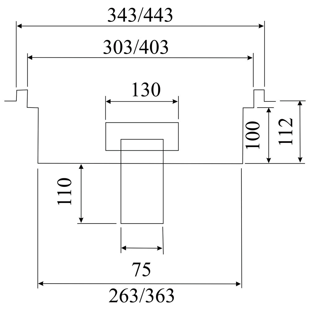
Sterfput | GS44
Inhoud (M³): 0.06
Gewicht (kg): 13
Breedte (mm): 400
Diepte (mm): 400
Hoogte (mm): 130
Gewicht (kg): 13
Breedte (mm): 400
Diepte (mm): 400
Hoogte (mm): 130
- Vervaardigd uit roestvrij staal AISI 441.
- Met geurbestrijding.
- Gelast bovenrooster met 33x33 mm mazen.
- Gelaste structuur.
Andere klanten bekeken ook
Laatst door jou bekeken
-
SARO Multifunctioneel gasfornuis met gasoven model TS95C71X
€1.650,00 €1.155,00Incl. BTW: €1.397,55
30% KORTING








